KOZINO - Baugrundstück mit rechtskräftiger Baugenehmigung für den Bau von 4 Wohneinheiten zum Verkauf. Alle Beiträge sind bezahlt, der Bau ist sofort möglich.
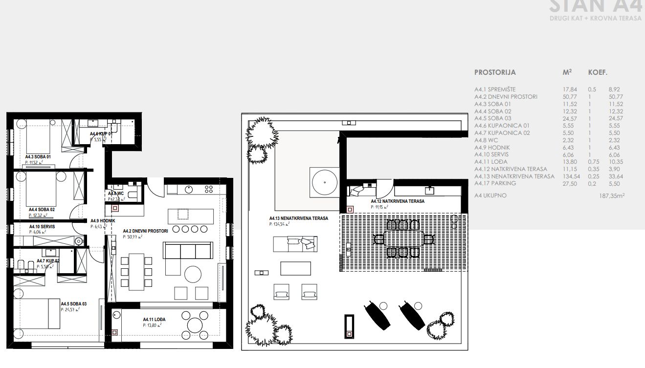
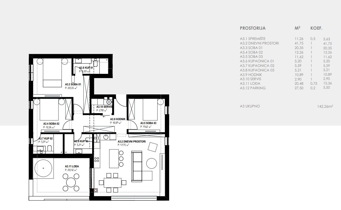
Das Gebäude verfügt über einen Keller mit Abstellräumen für jede Wohnung. Laut Plan befinden sich im Erdgeschoss zwei Zweizimmerwohnungen mit Abstellraum im Keller, Garten und 2 Parkplätzen. Im ersten Stock befindet sich eine Dreizimmerwohnung und im zweiten Stock eine Dreizimmerwohnung mit Dachterrasse.
Das Grundstück hat eine Fläche von 642 m2 und die Abmessungen sind ca. 28 m x 23 m.
Kauf

ID: 888-1
PETRCANE – ZWEISTÖCKIGE APARTMENTS 70 M VOM MEER ENTFERNT
Zadar - Okolica
Kaufpreis 395.000 €

















