Pag - Povljana - Zum Verkauf stehen zwei Zwei-Zimmer-Apartments im Erdgeschoss eines kleineren Wohngebäudes (insgesamt 6 Wohneinheiten). Das Gebäude befindet sich auf einem hügeligen Gelände und bietet einen wunderschönen Blick auf das Meer, mit einer Entfernung zum Strand von 300 m.
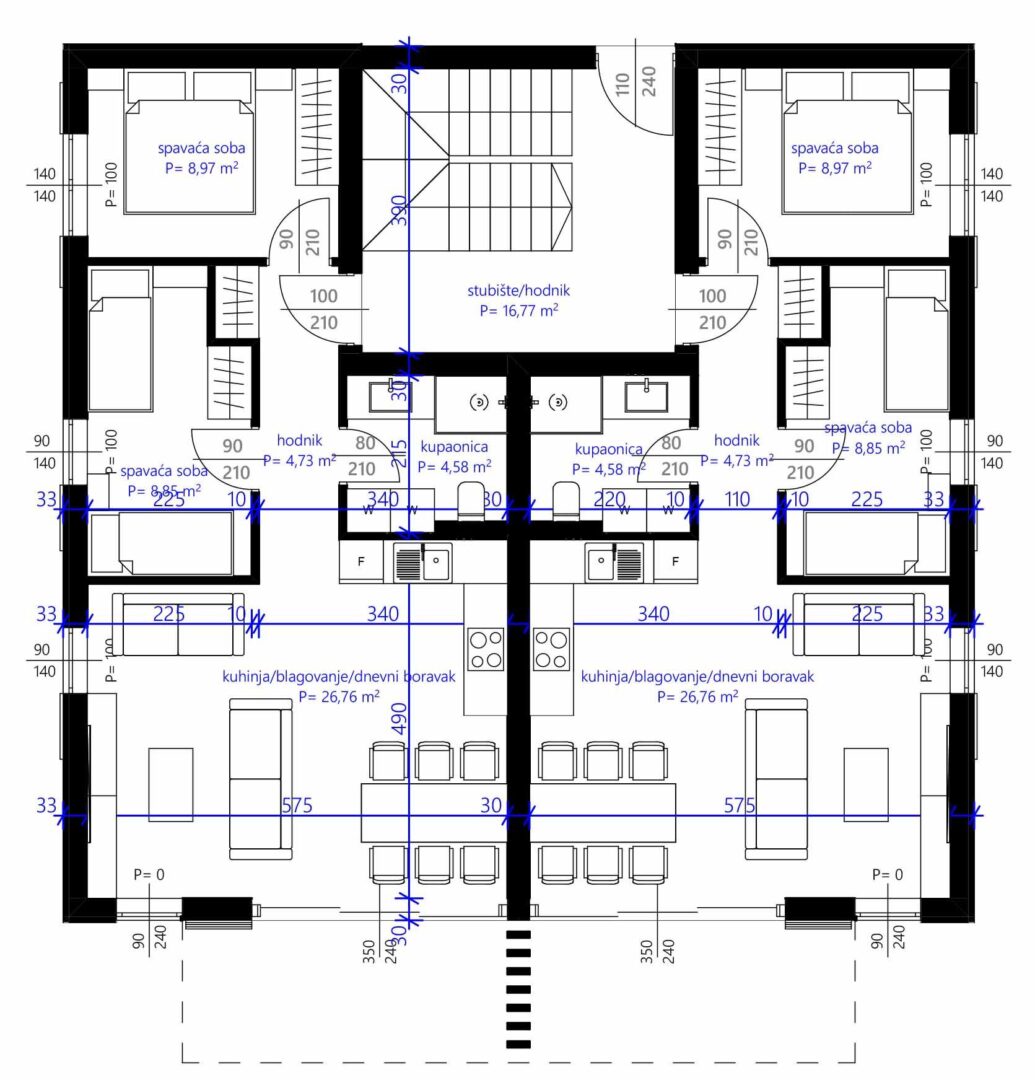
Das Apartment besteht aus einem Flur, zwei Schlafzimmern und einem Badezimmer, sowie einer Küche, einem Wohnzimmer und einem Esszimmer. Die Gesamtgrundfläche des Apartments beträgt 53,89 m2. Zum Apartment gehören auch ein Teil des Gartens und zwei Parkplätze.
Eigentum ist ordnungsgemäß.
Kauf

ID: 888-1
PETRCANE – ZWEISTÖCKIGE APARTMENTS 70 M VOM MEER ENTFERNT
Zadar - Okolica
Kaufpreis 395.000 €
































