Pag - Povljana - Zum Verkauf stehen zwei Zwei-Zimmer-Apartments im 2. Stock eines kleinen Wohngebäudes (insgesamt 6 Wohneinheiten). Die Apartments bieten einen wunderschönen Meerblick und sind nur 300 m vom Strand entfernt.
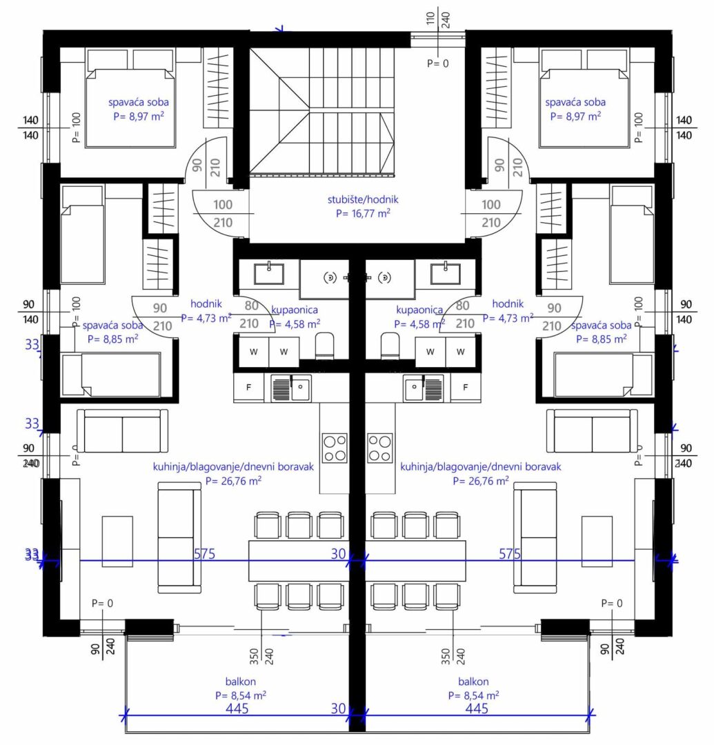
Das Apartment besteht aus einem Flur, zwei Schlafzimmern und einem Badezimmer, sowie einer Küche, einem Wohnzimmer, einem Esszimmer und einem Balkon. Die Gesamtgrundfläche des Apartments beträgt 62,42 m2. Zwei Parkplätze gehören ebenfalls zum Apartment.
Eigentum ist ordnungsgemäß.
Kauf

ID: 888-1
PETRCANE – ZWEISTÖCKIGE APARTMENTS 70 M VOM MEER ENTFERNT
Zadar - Okolica
Kaufpreis 395.000 €


































