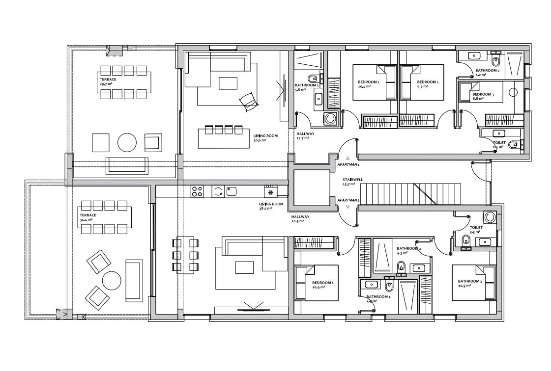
ZADAR - DIKLO - Es werden zwei Apartments im ersten Stock eines kleinen Wohngebäudes verkauft. Das Gebäude befindet sich in erster Reihe zum Meer.
S3 - Dreizimmer-Apartment - befindet sich im ersten Stock und besteht aus einer Küche, einem Esszimmer, einem Wohnzimmer, einem Flur, 3 Schlafzimmern, 2 Badezimmern, einer Toilette und einem Balkon von 30 m2. Im Keller des Gebäudes befinden sich ein Abstellraum und 2 Garagenstellplätze. Preis des Apartments: 1.011.666,25 Euro.
S4 - Zweizimmer-Apartment - das Apartment befindet sich im ersten Stock und besteht aus einer Küche, einem Esszimmer, einem Wohnzimmer, einem Flur, 2 Schlafzimmern, 2 Badezimmern, einer Toilette/Waschküche und einem Balkon von 24 m2 sowie einer überdachten Terrasse von 7 m2. Im Keller des Gebäudes befinden sich ein Abstellraum und 2 Garagenstellplätze. Preis: 1.003.200,00 Euro.

















